Umwelttechnologiezentrum Bremen
Umwelttechnologiezentrum Bremen
Umwelttechnologiezentrum Bremen
Umwelttechnologiezentrum Bremen
Umwelttechnologiezentrum Bremen
Umwelttechnologiezentrum Bremen
Umwelttechnologiezentrum Bremen
Umwelttechnologiezentrum Bremen
Umwelttechnologiezentrum Bremen
Umwelttechnologiezentrum Bremen
Umwelttechnologiezentrum Bremen
Umwelttechnologiezentrum Bremen
Umwelttechnologiezentrum Bremen
Umwelttechnologiezentrum Bremen
Umwelttechnologiezentrum Bremen
Info

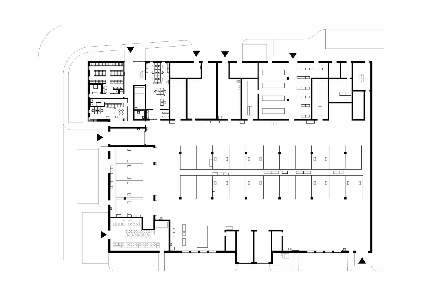
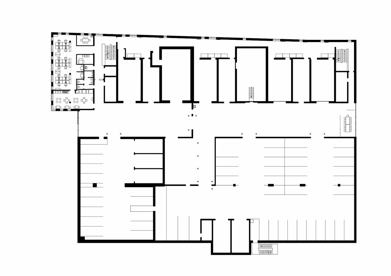
Das Umwelttechnologiezentrum Bremen ist ein klar strukturierter, funktionaler Neubau mit vier Ebenen, der auf dem firmeneigenen Areal von Mercedes an der Osterholzer Heerstraße entstanden ist. Er dient als Prüflabor für Fahrzeuge mit allen Antriebstechnologien und ist eines der modernsten Labore seiner Art. Werkstatt-, Prüf-, Büro- und Technikbereiche sind logisch gegliedert und ermöglichen effiziente Abläufe sowie eine hohe Flexibilität für zukünftige Erweiterungen.

Die Erschließung erfolgt für Mitarbeitende und Besucher von Norden, während die Fahrzeugzufahrt im Westen liegt. Durch die neugestaltete Pforte und die modernisierte Zufahrt fügt sich das Gebäude harmonisch in das bestehende Werksgelände ein. Die Außenanlagen sind auf die Anforderungen von Verkehr und Logistik abgestimmt.

Der Bau erfüllt anspruchsvolle Kriterien der Energieeffizienz und Nachhaltigkeit. Moderne Lüftungs-, Klima- und Heizsysteme, Wärmerückgewinnung, die Nutzung von Fernwärme sowie eine extensive Dachbegrünung mit PV-Anlage reduzieren den ökologischen Fußabdruck deutlich. Die flexible Gebäudestruktur stellt zudem sicher, dass das Zentrum langfristig an neue technische und betriebliche Anforderungen angepasst werden kann. Der Baukörper ist auf dem Grundstück so positioniert, dass ein zweiter Bauabschnitt reibungslos realisiert werden kann.

Auftraggeber
Mercedes-Benz AG
BGF
ca. 15.700 m²
Realisiert
2020 bis 2023
Leistung
Generalplanung
Fotografie
David Matthiesen