Environmental technology center Bremen
Environmental technology center Bremen
Environmental technology center Bremen
Environmental technology center Bremen
Environmental technology center Bremen
Environmental technology center Bremen
Environmental technology center Bremen
Environmental technology center Bremen
Environmental technology center Bremen
Environmental technology center Bremen
Environmental technology center Bremen
Environmental technology center Bremen
Environmental technology center Bremen
Info

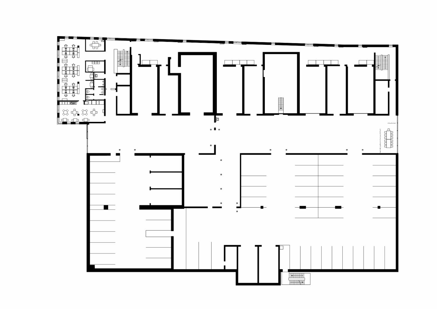
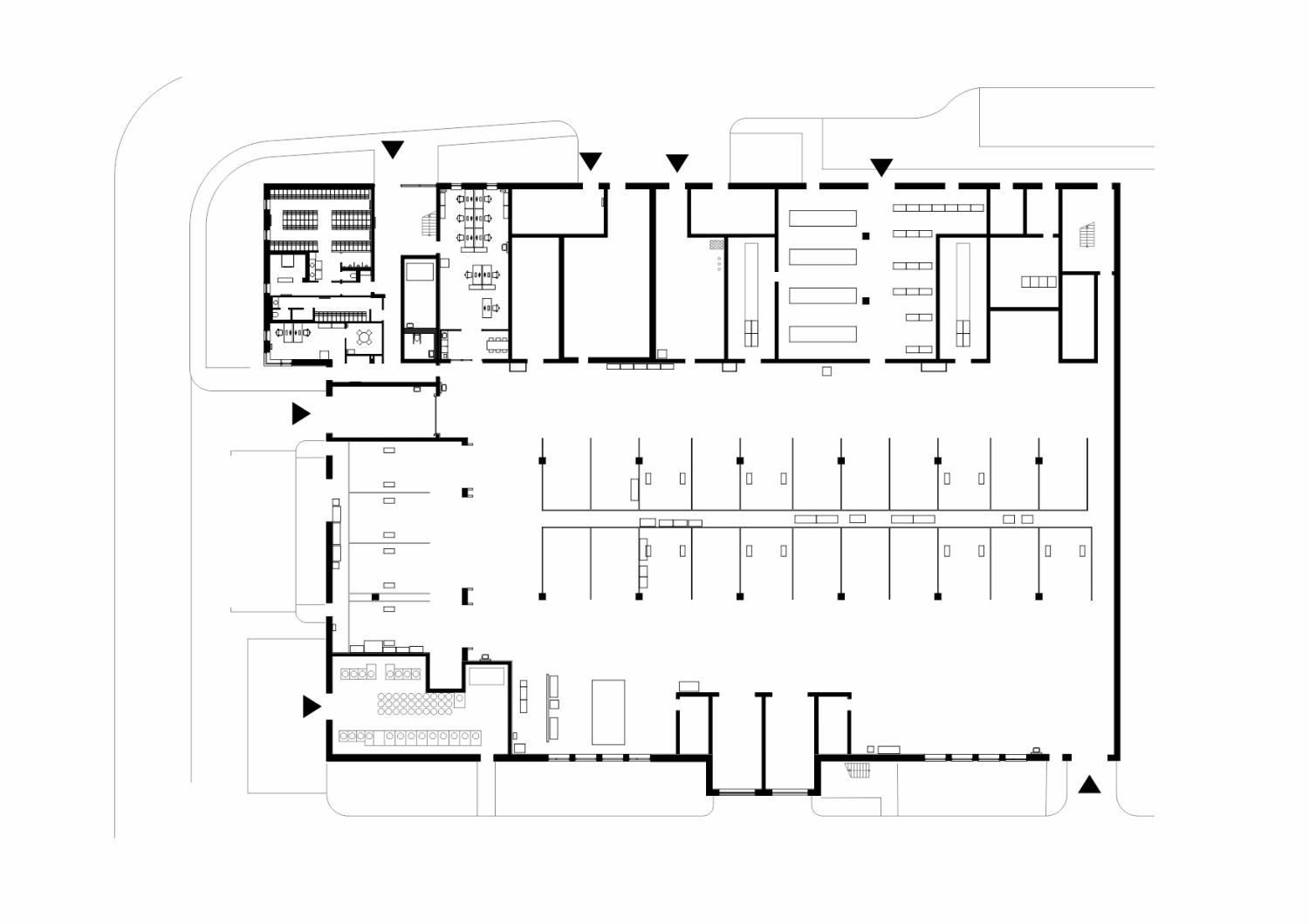
Mercedes-Benz AG is planning to construct a new building for its quality management department. The environmental technology centre will serve as a test laboratory for vehicles with all drive technologies, and when completed, will be one of the most modern laboratories of its kind.

Client
Mercedes-Benz AG
GFA
15.000 sqm
Completed
2020 till 2023
Services
General Planning
Photography
David Matthiesen