Nibelungenhal Walldürn
Nibelungenhal Walldürn
Nibelungenhal Walldürn
Nibelungenhal Walldürn
Nibelungenhal Walldürn
Nibelungenhal Walldürn
Nibelungenhal Walldürn
Nibelungenhal Walldürn
Nibelungenhal Walldürn
Info

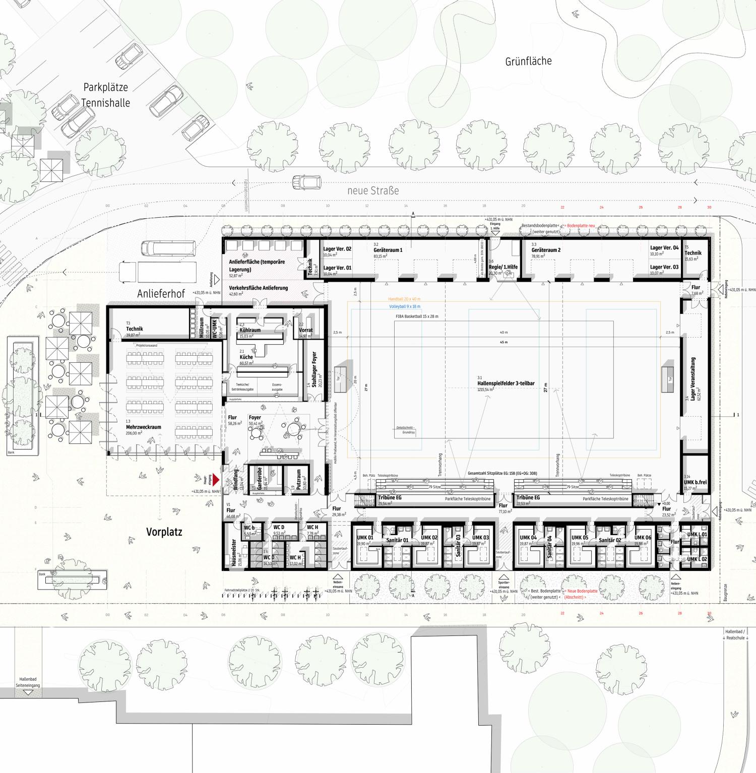
The Nibelungenhalle in Walldürn translates the myth of the Odenwald into light, space and timber structures:

A sustainable replacement building with a clear concept: passive strategies such as night cooling, cross-ventilation and shading enable a building system that requires no cooling at all. Local heating, PV panels and solar thermal systems ensure resource-efficient operation. By retaining the existing floor slab, 538 tonnes of CO₂ are saved, complemented by recycled concrete and timber structures acting as long-term CO₂ sinks. The central foyer connects all functions into an open, intuitively accessible space for sport, culture and community.

Completed
2026
Services
Competition