Jenoptik Moonraker Dresden
Jenoptik Moonraker Dresden
Jenoptik Moonraker Dresden
Jenoptik Moonraker Dresden
Jenoptik Moonraker Dresden
Jenoptik Moonraker Dresden
Jenoptik Moonraker Dresden
Info

New JENOPTIK Production Site, Dresden

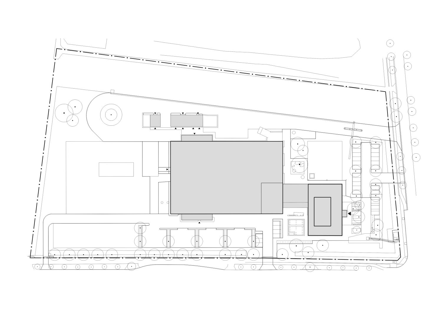
With its new building in Dresden, JENOPTIK Optical Systems GmbH is consolidating its previously distributed production and office space at a single location while also expanding its manufacturing capacity. Designed by RSE+ Architekten Ingenieure GmbH, the complex was built to the LEED Gold standard and combines the highest technical requirements with a clear architectural structure.

At the heart of the complex is the production building with around 2,000 m² of clean room space that meets the highest international standards. The column-free cleanrooms are located on the second floor at a height of around nine metres. A precisely coordinated air circulation system via the plenum, ceiling and raised floor ensures constant conditions in accordance with clean room class 5, and even class 3 in some areas. The ‘clean sub-fab’ below and a central technical area in the attic ensure the supply.

In terms of urban planning, the ensemble is divided into clearly differentiated structures: the office building marks the visitor address along Knappsdorfer Straße, while production, the front building and ancillary buildings are located along Wilschdorfer Landstraße. The office and production areas are functionally separate but linked by a connecting structure. A central meeting zone and shared lounge areas promote exchange between development, administration and production – making the close connection not only functional but also architecturally visible and tangible.

Client
JENOPTIK Optical Systems GmbH I General Planning CRC
GFA
15.300 sqm
Completed
2025
Services
Building Planning
Photography
All usage rights reserved Jenoptik