Family Centre Rosdorf
Family Centre Rosdorf
Family Centre Rosdorf
Family Centre Rosdorf
Family Centre Rosdorf
Family Centre Rosdorf
Family Centre Rosdorf
Family Centre Rosdorf
Family Centre Rosdorf
Family Centre Rosdorf
Family Centre Rosdorf
Info

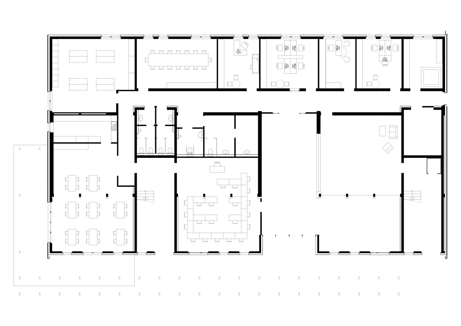
The Rosdorf community family center was developed as a renovation and addition to an unused school building. A shell of plaster and timber facade, together with a wooden roof, encloses the existing existing structures. Inside the building, a two-story foyer invites people to linger. Public areas such as multipurpose rooms, sports rooms, a library, and a cafeteria with an covered outdoor area are barrier-free.

Client
Gemeinde Rosdorf
GFA
1.850 sqm
Completed
2021
Services
Building planning
Photography
Ali Moshiri